STWC-SEC

APT agreed with M/S. Shanghai Turbine Works Co. Ltd., China in 2013 for the Supply, Erection, Commissioning, Testing and Servicing of TG sets ranging from 60 MW to 250 MW in India.

APT takes the total responsibility of Design, Engineering and procurement of Balance of plant Equipment, Erection and Commissioning of STWC TG sets as per customer / consultant requirement within the battery limits.

APT is also authorized by STWC for servicing and troubleshooting activities in India of the existing STWC turbines and for upgradation & modernization support of the old turbine. APT also enhanced the workshop facility for servicing higher MW rotors ranging up to 250 MW.

STWC is located in Minhang district, Shanghai covers an area of one square kilometer, is known as the China cradle of the turbine.

With world advanced technology and production equipment and domestic first-class machining and manufacturing capability for steam turbines

Modules Of Steam Turbine


    SHT-A10 is single-casing, double flow, non-reheat turbine. Its power is a little low, so it can be directly connected to the generator or the drive device, also it can connects them with gearbox. It is often used to the biomass power generation, the chemical industry drives.

    Technical parameters
  • Output Power: MAX 80MW.

  • Inlet pressure: MAX 16.7MPa.

  • Inlet temperature: MAX 600℃

  • Speed: 3000~16400rpm

  • Exhaust pressure (condensing): MAX 60kPa

  • Exhaust pressure (back-pressure): MAX 1.5MPa

  • Exhaust area: 0.3~5m2

  • Typical Size
  • Length : ~8m

  • Width : ~5m

  • Height :~3m

  • Characteristics
  • Condensing or back-pressure

  • Turbine shipment is whole

  • Axial or radial exhaust

  • Flexible start

  • Integration between oil system and the frame

  • Oil pipeline is separated from steam pipe

  • With optional one or two-point extraction

    SHT-A20 is single-casing, double flow, condensing turbine. This model is mainly used to the condensing unit with low parameters, low power.(such as geothermal unit) it can be directly connected to the generator or the drive device, also it can connect them with gearbox. It's often used to the chemical industry drives with low power and high.

    Technical parameters
  • Output Power: MAX 150MW.

  • Inlet pressure: MAX 3MPa.

  • Inlet temperature: MAX 400℃

  • Speed: 3000~16400rpm

  • Exhaust pressure (condensing): MAX 60kPa

  • Exhaust area: 4~22m2

  • Typical Size
  • Length : ~12m

  • Width : ~7m

  • Height :~6m

  • Characteristics
  • Condensing

  • Radial exhaust

  • Flexible start

  • Turbine shipment is whole

    SHT-A30 is single-casing, single flow, reheat turbine. It can be directly connected to the generator or the drive device, also it can connect them with gearbox. It is often used to the biomass power generation, the small combined cycle turbine.

    Technical parameters
  • Output Power: 60-150MW.

  • Inlet pressure: MAX 13.2MPa.

  • Inlet temperature: MAX 566℃

  • Reheat temperature: MAX 566℃

  • Speed: 3000~16400rpm

  • Exhaust pressure (condensing): MAX 60kPa

  • Exhaust pressure (back-pressure): MAX 1.5MPa

  • Exhaust area: 0.282~4.39m2

  • Typical Size
  • Length : ~9m

  • Width : ~11m

  • Height :~5m

  • Characteristics
  • Condensing or back-pressure

  • Turbine shipment is whole

  • Axial or radial exhaust

  • Flexible start

  • With optional one or two-point extraction

    SHT-A40 is double-casing, double flow, non-reheat, condensing turbine, with optional one or two-point extraction. It is often used to the self-generation power plant in petrochemical, to meet the needs of industrial extraction or heating extraction.

    Technical parameters
  • Output Power: 60-150MW.

  • Inlet pressure: MAX 16.7MPa.

  • Inlet temperature: MAX 600℃

  • Speed: 3000rpm or 3600rpm

  • Exhaust pressure : MAX 60kPa

  • Exhaust area: 2.2~8.8m2

  • Typical Size
  • Length : ~15m

  • Width : ~8m

  • Height :~6m

  • Characteristics
  • Condensing

  • Shipment of high pressure cylinder is whole

  • Radial exhaust

  • Flexible start

  • Integration between oil system and the frame

  • Oil pipeline is separated from steam pipe

  • With optional one or two-point extraction

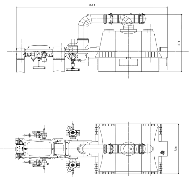
    SHT-A50 is double-casing, single flow, reheat, condensing turbine. It is often used to the coal-fired power plant, combined cycle power plant and solar power.

    Technical parameters
  • Output Power: 60-250MW.

  • Inlet pressure: MAX 16.7MPa.

  • Inlet temperature: MAX 566/566℃

  • Speed: 3000rpm or 3600rpm

  • Exhaust pressure: MAX 60kPa

  • (High pressure cylinder is capable of operating with higher rotation)

  • Exhaust area: 2.1~11m2

  • Typical Size
  • Length : ~10m

  • Width : ~6m

  • Height :~5m

  • Characteristics​
  • Condensing

  • Shipment of high pressure cylinder is whole

  • Axial or radial exhaust

  • Welded rotor is used in the IP and LP cylinders, this raises the economy and the starting manageability, makes the units meet the requirement of Rapid start-up.

  • Automatic start up and shut down

  •  

    SHT-A60 is double-casing, double flow, reheat, condensing turbine. It is often used to the coal-fired power plant, large-scale of combined cycle power plant.

    Technical parameters
  • Output Power: 150-250MW

  • Inlet pressure: MAX 16.7MPa.

  • Inlet temperature: MAX 566/566℃

  • Speed: 3000rpm or 3600rpm

  • Exhaust pressure: MAX 60kPa

  • Exhaust area: 8.8~22m2

  • Typical Size
  • Length : ~17m

  • Width : ~7m

  • Height :~5m

  • Characteristics
  • Condensing

  • Radial exhaust

  • Flexible start

  • Flexible start, meets the requirement of Rapid start-up.

  • With optional one-point extraction

  • Automatic start up and shut down

    SHT-A70 is trible -casing, double flow, reheat, condensing turbine. It is often used to the large-scale of coal-fired power plant, with optional one or two-point extraction.

    Technical parameters
  • Output Power: MAX 250MW.

  • Inlet pressure: MAX 16.7MPa.

  • Inlet temperature: MAX 566/566℃

  • Speed: 3000rpm or 3600rpm

  • Exhaust pressure : MAX 60kPa

  • Exhaust area: 8.8~22m2

  • Typical Size
  • Length : ~20m

  • Width : ~7m

  • Height :~5m

  • Characteristics
  • Good economics

  • Condensing

  • Radial exhaust

  • Flexible start, meets the requirement of Rapid start-up.

  • Automatic start up and shut down

  • With optional one or two-point extraction

SEC (SHANGHAI ELECTRIC GROUP CO. LTD)

M/s. Shanghai Electric Group Co. Ltd is one of the largest diversified equipment manufacturing groups in China and M/S. Shanghai Electric Machinery Co. Ltd. (SEC) is a subsidiary of M/S. Shanghai Electric Group Co. Ltd.

The List of Machinery manufactured by M/S. Shanghai Electric Machinery Co. Ltd. (SEC) are given below:

Medium and large size A/C (Induction & Synchronous Motors), D/C Motors & Generators.

  • For Motor rating ranging from 220 KW to 30,000 KW (30 MW) – Induction Motor.
  • For Motor rating ranging from 200 KW to 100,000 KW (100 MW) – Synchronous Motor.
  • For Motor rating ranging from 50 KW to 9,350 KW (9.3 MW) – DC Motor.

Variable Frequency Drives

  • FRENIC4600 Series MV Variable Frequency Drives (VFD) for Motor Ranging up to 38 MW

APT has been appointed as a service center in India to cater the needs of the customer right from the easy availability of spares parts as per customer requirement, Installation & Commissioning, Testing, Diagnosis & Repair, Retrofitting & Modification of Older Motors.